
Whether you are planning a remodel or creating a brand-new bathroom, don’t underestimate the power of small tweaks. They have the potential to completely transform even the most compact spaces, giving you a bathroom that is both functional and stylish.
Many homeowners believe a small bathroom is restrictive. With the right design, even compact spaces can feel bright, functional and open.
The key is understanding how thoughtful layout and detail adjustments make the biggest difference without needing extra space or massive renovations.
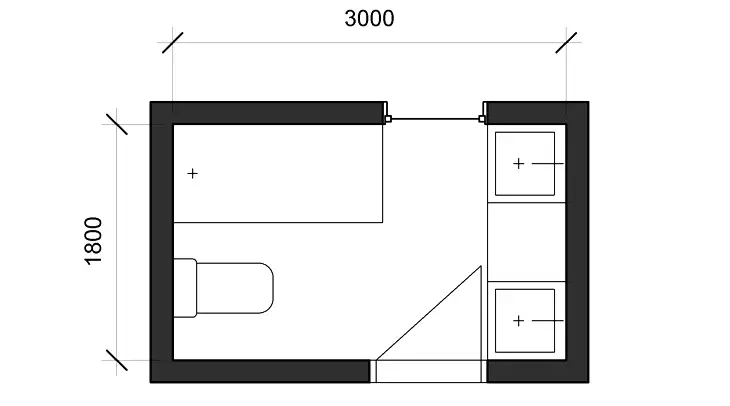
This classic bathroom layout is the most widely used across many Australian homes. Everything sits neatly aligned along one wall.
Plumbing is cost-effective and straightforward, which explains why builders and renovators often recommend this arrangement for smaller bathrooms.
It is efficient in terms of square metre usage, making it a reliable choice when space is very limited.
However, this layout feels cramped for many families. Storage space is minimal, and windows are often excluded, leaving the room dark.
This design is ideal for strict budgets, but may not always provide the sense of comfort people desire today.
If you can extend the bathroom by thirty centimetres in length, you gain more flexibility in layout and features.
This configuration features dual sinks, which are ideal for shared or family use, offering greater convenience during busy mornings.
A clear separation of zones improves flow, and the addition of a full-height window can flood the space with light.
The result is a spa-like atmosphere, where natural light and symmetry create a much more luxurious everyday bathroom experience.
However, this option requires slightly more complex plumbing and uses an additional 0.54 square metres of valuable floor space.
If your home has a laundry or service wall nearby, plumbing costs may not be as challenging or expensive.
The major drawback is reduced storage space. Without proper planning, you risk losing valuable room for towels and bathroom essentials.
This option rethinks the second design, retaining the additional length while replacing the second sink with a tall storage unit.
The result is a centred sink with balanced symmetry, flanked by a full-height cabinet offering abundant storage for daily items.
This adjustment allows you to keep a cleaner countertop, making the entire space feel open, organised, and well planned.
The circulation path from the door to each feature feels smooth, creating a sense of spaciousness even within limited dimensions.
This option strikes a perfect balance between design and functionality. It provides ample storage where it’s needed most, while maintaining a high-end finish and ensuring natural light is not compromised.
Storage is often underestimated in bathroom design. Without proper storage, clutter builds quickly and makes even large spaces feel smaller.
Small bathroom renovation tweaks, such as introducing tall cabinetry, recessed shelving, or mirrored cabinets, can make a significant difference in functionality.
Think about what you use every day—toiletries, towels, skincare. These items require a designated space that is both convenient and stylish.
Clever solutions, such as floating vanities with drawers or recessed niches in shower walls, keep essentials accessible without wasting precious space.
Good lighting is one of the most effective small bathroom renovation tweaks available. Lighting impacts comfort, mood, and overall usability.
Natural light through a skylight or window can make a bathroom feel instantly larger and more inviting.
Artificial lighting plays an equally important role. Task lighting above mirrors ensures you can apply makeup or shave with precision.
Accent lighting, such as LED strips under vanities, adds luxury while providing useful soft light for nighttime bathroom visits.
Dimmers allow flexibility. You can create a relaxing atmosphere for baths or a bright setting for morning routines.
Mirrors are a simple yet powerful element when designing small bathrooms. They reflect both light and space to create an open atmosphere.
A large wall mirror above the vanity makes the room appear wider, while mirrored cabinets combine function with reflection.
Position mirrors opposite windows where possible. This maximises natural light flow, brightening the room and reducing the need for artificial lighting.
Frameless designs keep the look clean, while backlit mirrors introduce an additional glow without taking up extra wall space.
Colour choice is another effective tweak for a small bathroom renovation. Lighter colours create the illusion of openness and space.
Soft whites, greys, and natural tones keep the bathroom airy, while glossy tiles reflect light to increase the feeling of spaciousness.
Consider using consistent finishes across floors and walls. A seamless flow makes the room feel more expansive and less fragmented.
Introducing texture through matte finishes, stone-look tiles, or timber cabinetry adds depth without overwhelming the small footprint.
Compact fixtures are essential when planning small bathrooms. Wall-hung toilets, floating vanities, and slim basins all free up floor area.
Sliding or pocket doors conserve space that would otherwise be occupied by traditional swing doors, enhancing circulation and usability in small bathrooms.
Frameless shower screens also open the room visually, allowing uninterrupted lines and eliminating heavy frames that block light and flow.
Remember, every household has unique habits and needs. The best bathroom layout is the one that supports your daily routines without compromise. So, when planning your renovation, consider wha is most important to you and your family.
If two people share the bathroom, dual sinks may be a must. If storage is a priority, prioritise cabinets over extras.
Consider your morning and evening routines. Plan a layout that minimises disruption and creates comfort during those daily rituals.
No matter how clever the design, successful small bathroom renovation tweaks depend on professional, quality artistry.
Hiring a licensed and registered builder ensures your renovation meets strict safety standards and complies with Australian building regulations.
Unqualified operators may appear cheaper initially, but hidden costs, delays, and poor finishes can cause financial loss and stress.
Trenic Constructions, led by licensed and registered master builder Trent Comelli, brings over twenty years of building experience to every project.
Their team specialises in bathrooms of all sizes, ensuring even the smallest renovations deliver outstanding functionality and long-lasting value.
Choosing Trenic Constructions means your project is handled with professionalism, quality artistry, and complete peace of mind.
Small bathroom renovation tweaks do not always involve major expense or demolition. Minor adjustments can deliver major lifestyle improvements.
Clever layout, Smart storage, natural light, and thoughtful finishes can transform how you feel when stepping into the bathroom.
These tweaks make the room more practical, more beautiful, and ultimately more enjoyable for you and your family every day.
A small bathroom does not need to feel restrictive. With small bathroom renovation tweaks, you can achieve functionality and style.
Consider whether light, storage, or flow matters most to your lifestyle, and design accordingly. Every detail influences how the room feels.
Even subtle changes can create big comfort. Choose the tweaks that support your priorities and watch your bathroom transform into something special.

CEO Trent Comelli